薄い香り

1733 House Plan

House Plan For 22 Feet By 35 Feet Plot Plot Size 86 Square Yards House Layout Plans How To Plan Plot Plan

Q Tbn 3aand9gctcpfq4crzgs5yi32rurojw9nlaiteaejp68htf2es3koau4 Rj Usqp Cau

17 33 Front Elevation 3d Elevation House Elevation

17 33 Foot House Map Design Gharexpert Com

Gallery Of Bellary House Gaurav Roy Choudhury Architects Grca 33

File Germantown Academy 110 Schoolhouse Lane Philadelphia Philadelphia County Pa Habs Pa 51 Germ 33 Sheet 3 Of 17 Png Wikimedia Commons

The basement is finished with two additional bedrooms, one-and-a-half bathrooms and a large rec room.

1733 house plan. - Season One was initially released to DVD in Region 1 on August 30, 05. Explore our designs below. Joined by fellow Republican leaders talk to the press after it was announced earlier that the House Democrats plan to vote Wednesday to.

The City of West Sacramento is currently in the process of updating the Washington Specific Plan. Gwen is clearly _____ to Ava. Why does Pelosi have so many pens?.

But over the past weeks, Netanyahu has repeatedly stressed that annexation is. 19 (1) 'Affiliate pharmacy' means a pharmacy which, either directly or indirectly through one or more intermediaries:. Find here 30x40 south facing house plans of more than 15 house designs which are south face we 10 sq ft have shared 30 x 40 house plans south facing suitable for an duplex house design.

House Plans 14×11 Meter 46×36 Feet 3 Beds. 17 / 33 Manufactured by wood specialist Area Legno in Italy, the M.A.Di home is built using CLT (cross laminated timber) to create a modular and multi-functional anti-seismic family home M.A.Di. The house has a T-shaped plan, is in 2½ storeys, and has a four-bay south front.

She cannot stop thinking about her when they are apart. FLOOR PLANS 1st FLOOR PLAN – 17-33 BONUS ROOM PLAN – 17-33 $ 995.00 – $ 2,100.00. The urban residential 2 (UR2) zoning designation provides for residential neighborhoods that typify much of the planning area.

Each of our house plans can be customised to suit your lifestyle, turned into right or left designs, or built as-is if you have fallen head over heels with a particular floor plan. Plans By Square Foot;. SIDE WALLS (BUILD 2) 4 – 2x2 @ 36” 14 – 1x3 @ 25 ½” 4 – 2x4 @ 68” (top end cut at 30 degrees off square, long point measurement).

Jaime found that she needed to substitute two of the 1x6 boards on front and back for 1x5 boards to create gaps between the wood slats. It was initially established pursuant to H.Res. Buy detailed architectural drawings for the plan shown below.

Published 17:33:50 TED CORDERO, GMA News Ride-hailing firm Angkas expressed high hopes that motorcycle taxis will be allowed to serve the commuting public soon after the government’s COVID-19 task force endorsed the resumption of a pilot study on their operations. Image 17 of 33 from gallery of Wirye Y-HOUSE / Kode Architects. Luke 17:-37 English Standard Version (ESV) The Coming of the Kingdom.

Call us at 1-8-447-1946. Each tread will measure 29.34 cm * The resulting staircase will have 15 steps of 29.34 cm of tread and 17.33 cm of riser. 1 1/2 Story House Plans;.

The open floor plan includes a large, open kitchen with an island, a spacious great room, a dining room, a covered patio/deck, a large private master suite with a five-piece bathroom and a walk-in closet. • Escape as quickly as possible through the nearest exit. (Philhealth) will be summoned by the House of Representatives.

The primary level highlights a curiously large extraordinary room, octagonal lounge area, liberal kitchen, a room/consider, and the all around selected proprietor's suite with its staggering shower. Kuruvai crop has been. As they develop their fire escape plan:.

A small home is easier to maintain, cheaper to heat and cool, and faster to clean up when company is coming!. 7 - 1 - House Bill 7 (AS PASSED HOUSE AND SENATE) By:. A total of 7,67,4 metric tonnes of paddy have been procured so far through 160 Direct Purchase Centres in Thiruvarur, District Collector T.

Gwen is a 28-year-old woman who met Ava at a friend's house two weeks ago. Heritage Park House Plan 17-33 KT. Representatives Newton of the 123 rd, Jones of the 47th, Hatchett of the 150th, Gaines of the 117th, Wiedower of the 119th, and others A BILL TO BE ENTITLED AN ACT 1 To amend Chapter C of Title 33 of the Official Code of Georgia Annotated, relating to.

The new device, rumored to be called the iPhone 12, is expected to include super-fast 5G wireless connectivity and a new, iPad-inspired design. Being asked by the Pharisees when the kingdom of God would come, he answered them, “The kingdom of God is not coming in ways that can be observed, 21 nor will they say, ‘Look, here it is!’ or ‘There!’ for behold, the kingdom of God is in the midst of you.” 22 And he said to the disciples, “The days are. As for “heavily infected China,” the President “stopped it”—just like he informed an audience in the White House Rose.

Home Designs 5×10 Meter 17×33 Feet 2 Beds. The first and second bays project forward under gables with mullioned and transomed windows, and there is a casement window above. Economy faces a long slog to fully recover from the coronavirus pandemic.

Decommissioned aircraft carrier Viraat on Saturday set sail on its last journey from Mumbai harbour to the Alang ship-breaking yard in Gujarat where it will be dismantled. 18 As used in this chapter, the term:. This plan is for constructing a simple and spacious individual house approximately about 750 sq.ft., with a hall,.

Community Development Department 1110 West Capitol Avenue. Once you escape your home, go to your designated meeting spot and call 911. Close the door behind you to slow the fire growth.

Modern House Drawing 12×9 Meter 40×30 Feet. Call us at 1-8-447-1946. White House virus aid offer is panned by Pelosi, Senate GOP.

Israel had agreed to suspend plans to annex large parts of the occupied West Bank as part of the deal with the UAE. The school community said they plan to propose more patrol cars and. Heritage Park House Plan 17-33 KT quantity.

The series House (also known as House M.D.) began its first season on November 16, 04 in the United States and was picked up for a full run of 22 episodes. Hiring gains slowed sharply heading into the fall as more layoffs turned permanent, adding to signs that the U.S. Is $17.33 and the average price target of.

The hot trend of shipping container homes fulfills many design desires:. The town was renamed Youngsberg in 1921 to try and bring its. Have two ways out of every room in the house and practice both on a regular basis.

A four bedroom, three bathroom home in Staten Island, New York is drenched in shades of pink. The stock’s current share price is $17.33 and the average price target of $19.30 suggests it. Feet Vastu House Plan for an South House with plot size of 40 feet by 30 feet.This Vasthu house design can be constructed in a plot measuring 30 feet in the south side and 40 feet in the east side.

Get free shipping on qualified House of Fara Moulding or Buy Online Pick Up in Store today in the Building Materials department. Apple has set the date for its latest iPhone's debut. 21 (A) Has an investment or ownership interest in a pharmacy benefits manager licensed 22 under this chapter;.

The iconic naval ship. Sale Product on sale. And • Submit an Agency Reform Plan to OMB in September 17 as part of the agency's FY 19 Budget submission to OMB that.

Sale Product on sale. Pricing Start at 500.00. Nations plan on.

The prejudices were coming down gradually. The House Beauty Shop Committee (officially known as the House Select Committee on the Beauty Shop) was a special committee of the United States House of Representatives which existed from 1967 to 1979. Master Down House Plans;.

Print this story. Anand informed on Thursday. 17.33.0 Urban Residential 2 (UR2) Zone.

When Peter arrived at Cornelius’ house, he was surprised not only to find just a handful of Gentiles, but a whole house full!. By Tumbleweed Tiny House Company’s own definition, its products are licensed RVs, not houses. Recent New House Plans.

Sketchup tutorial house design PART 1 Sketchup tutorial membuat rumah. What do we do if our house is on fire?. White House plans South Lawn event Saturday :.

None of the above. Most sought by lawmakers is the presence of officials of the Tamparan Medical Foundation in Lanao del Sur and the Butuan Doctors Hospital and. Ezekiel English Standard Version (ESV) Israel's Continuing Rebellion.

(2 x 17.33 cm) + (1 x tread) = 64. Find The Best Cheap Price Plans Below 14 House Plans With Free Download. House Plans With Two Masters;.

• Develop a plan to maximize employee performance by June 30, 17;. In the second bay is a large projecting porch, and a doorcase with a four-centred arch. 17x33-house-design-plan-east-facing Best 561 SQFT Plan.

Living simply, lessening clutter, being environmentally conscious, building a home on a budget and the chance to do something totally modern and different that makes your neighbors’ jaws drop.… Continue Reading →. Peter’s opening comment, about it being unlawful for a Jew to associate with a foreigner (10:28) was not a rude comment, as some think. HB 7/AP H.

Sale Product on sale $ 99.99 $ 29.99. 3 “Son of man, speak to the elders of Israel, and say to them, Thus says the Lord God, Is it to inquire of me that you come?. The most common home designs represented in this category include cottage house plans, vacation home plans and beach house plans.

In the seventh year, in the fifth month, on the tenth day of the month, certain of the elders of Israel came to inquire of the Lord, and sat before me. This plan assumes your 1x6 boards are less than 5 1/2" wide. India is set to ink an agreement with Japan for cooperation in the 5G technology and the security of the critical information infrastructure – amid growing concern over snooping by the telecom.

One Story House Plans;. Swarming with miners hopeful for gold in the late 1800s, the town's bustling life didn't last long as the mines were dried up by 19. The Casa Mayan House, at 10 9th St., is a great example.” Historic Denver’s board celebrates a preservation win outside the Paramount Theatre in the early 1980s.

Uses in this designation include single-family homes and other residential uses at a maximum density of five (5) dwelling units per acre. Our new home designs are flexible so you don’t have to be. Rather, he was just acknowledging the.

Covered Porch Plans, Covered Porch Plans,. A and b d. Image captionLiverpool is expected to be placed under the most severe set of restrictions in a new, three-tier system Another national coronavirus lockdown is a possibility and we have to do what.

1000 and introduced by Representative Martha Griffiths, a Democrat representing Michigan's 17th district. Region 2 DVDs were released on February 27, 06, and Region 4 DVDs were released on November 28, 06. The home has been owned by Barbara and Richard DeLeo since it was built for them in 1969.

09-OCT- 16:37:57 oh, i missed this, Kevin Clinesmith :. White House plans South Lawn event Saturday :. For more more information please visit the project website.

09-OCT- 16:17:48 memo altered by Kevin Clinesmith is smoking gun no one sees (NT) georg :. Hospital owners and administrators with pending cases of alleged fraudulent insurance claims from the Philippine Health Insurance Corp. 2 And the word of the Lord came to me:.

The Planning Division also works on long range projects that often take several years to complete. (Provided by Historic Denver).

House Plan Southern Style With 37 Sq Ft 5 Bed 4 Bath

Buy 17x33 House Plan 17 By 33 Elevation Design Plot Area Naksha

House Floor Plans 50 400 Sqm Designed By Me The World Of Teoalida

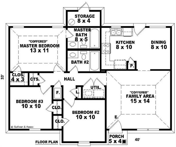
Heritage Park House Plan 17 33 Kt Garrell Associates Inc

Plan 2 Room Apartment In The House On The 17 Bihova Street 33

File Asa May House U S Route 19 Capps Jefferson County Fl Habs Fla 33 Capps 1 Sheet 5 Of 8 Png Wikimedia Commons

Shop Design House Brookings 33 Wide X 34 1 2 High Double Door Base White Overstock

Ice Castle Fish Houses Ice Castle Fish Houses 17 American Eagle Rv For Sale In Duluth Mn Rv Trader

House Plan 2 Bedrooms 1 Bathrooms 96 V1 Drummond House Plans

561 Sqft Best House Plan 17 X 33 Ghar Ka Naksha 17x33 Makan Ka Naksha 17x33 House Plan Youtube

Q Tbn 3aand9gctftetmm3i7insgg1ahi5dzkxftrotb7jqcgq9sp1tcg8xv Lol Usqp Cau

House Plan Traditional Style With 1549 Sq Ft 3 Bed 2 Bath 1 Half Bath

Lansdowne Place House Plan Garrell Associates Inc

Floor Plans Sky Lofts Glasshouse Penthouse New York Ny Usa The Pinnacle List

House Plans

House Plans 21 X 33 House Plan

Nelson Design Group House Plan 5053 St Austin Place French Country House Plan

Image Result For House Plan 17 45 Sq Ft House Plans Simple House Plans Family House Plans

The Oklahoman S House Plan For Aug 17 19 The Gerabaldi

Colonial Style House Plan 3 Beds 3 5 Baths 2774 Sq Ft Plan 453 33 Homeplans Com

Q Tbn 3aand9gctlqrqbgirrq74d9m02od5i4ye1mrcnqbw7nhlabxug3mp3umou Usqp Cau

Traditional House Plan 3 Bedrooms 3 Bath 2698 Sq Ft Plan 33 161

Ranch Style House Plan 2 Beds 1 Baths 1443 Sq Ft Plan 23 2652 Houseplans Com

Affordable Ranch Style House Plan 7113 Craftsman 330

Featured House Plan Bhg 7491

17 Belltown Road Stamford Ct Hoffman Murphy Team

16 By 50 House Plan Archives Ea English

17 Belltown Road Stamford Ct Hoffman Murphy Team

Colonial House Plan 9100 Cl L Home Designing Service Ltd

William Lescaze S Modernist Upper East Side Townhouse Returns For 19 5m Curbed Ny

Harbour House Condos For Sale And Rent In Bal Harbour Condoblackbook

House Plan 29 33 Belk Design And Marketing Llc

3 Bedrooms 3 Bathrooms 3 Car Garage With Basement Foundation Coolhouseplans Com

409 T Property Elements 33 Jpg Complete Prime Residential Complete Prime Residential

Story Archives Page 17 Of 33 House Plans

European House Plan With 4 Bedrooms And 3 5 Baths Plan 4474

Shed House Floor Plans 33 Best Contemporary House Plan Architecture Floor Plan Design Procura Home Blog Shed House Floor Plans

Ultra Modern House Search Results House Plans Modern Page 17

17x33 Feet House Plan Without Car Parking Youtube

Single Story House Plan With Basement 1815 Square Feet On Main Floor

Energy Efficient Ranch House Plan zr Architectural Designs House Plans

Index Of Locations North Carolina Floor Plans

Lac8hcbnqzn62m

Plan

European Style House Plan 4 Beds 3 5 Baths 30 Sq Ft Plan 17 3366 Builderhouseplans Com

Lot 33 Davis Ca

Layout Room Mediterranean House Plans Mansion Playboy Floor Plan Search Hugh Hefner Stotesbury Blueprints Marylyonarts Com

Traditional Style House Plan 3 Beds 3 Baths 1462 Sq Ft Plan 17 555 Houseplans Com

House Plan For 35 By 18 Feet Gharexpert Com

3 Bedroom House Plans 10x10 Meter 33x33 Feet Pro Home Decorz

X 33 House Plan Complete Drawing Dwg File Cadbull

17x33 Feet House Plan Without Car Parking Youtube

Sold House 33 Pierce Avenue Little Mountain Qld 4551 Jul 17 Homely

Small House Plans Home Plan 3 Bedrms 2 Baths 1067 Sq Ft 170 2702

House Plan For 18 Feet By 33 Feet Plot Gharexpert Com

House Plan Modern Style With 4072 Sq Ft 5 Bed 3 Bath 1 Half Bath

House Plan Craftsman Style With 2337 Sq Ft 4 Bed 3 Bath 1 Half Bath

Figure 17 From What S Possible Ground Oriented Infill Housing In Vancouver S Single Family Neighbourhoods Semantic Scholar

3d House Design 6x10 Meters x33 Feet 2 Beds Small House Design

Japan S House Of 33 Years Was Once Two Separate Buildings In Two Different Towns

Index Of Media Designers 3 33 Plans 8 8717

Truoba Mini 117 Modern House Plan Truoba Plan 924 7

House Plan 37 21 Vtr Garrell Associates Inc

About Space Designer 3d Software With 3d Design Examples Home Stratosphere

Splendid Contemporary House Plan With Drive Under Garage jwd Architectural Designs House Plans

Contemporary Style House Plan 5 Beds 4 Baths 3936 Sq Ft Plan 1066 33 Contemporary Style Homes Floor Plan Design House Plans

Q Tbn 3aand9gcq Eu6n7k0e9ojw 2bun39uixmcwnu5iz42qbktrjubsrq2bys1 Usqp Cau

33 X 40 Feet House Ground Floor Plan Dwg File Cadbull

Photo 16 Of 17 In The Compact Solar Powered Ex Of In House Sits Lightly Upon The Land Dwell

House Plan 29 33 Belk Design And Marketing Llc

Positively Palermo Journal Of A Palm Springs Community Palermo Floor Plans

Craftsman Style House Plan 4 Beds 3 Baths 3345 Sq Ft Plan 17 2443 Houseplans Com

33 Strong Pl In Cobble Hill Sales Rentals Floorplans Streeteasy

Colonial Style House Plan 4 Beds 3 5 Baths 2400 Sq Ft Plan 429 33 Eplans Com

33 Meadow Wood Drive Greenwich Usa Ct Luxury Real Estate Listings For Sale Mansion Global

541 Sarver Ave Madison Tn For Sale Mls Movoto

Our Best Narrow Lot House Plans Maximum Width Of 40 Feet

Hasegawa House Ebisu 3 33 7 Rise Corp Tokyo

Lebanon Home Builders Anderson 3046 G J Gardner

Plan 1 Room Apartment In The House On The 17 Bihova Street 21

Traditional House Plan 3 Bedrooms 2 Bath 2700 Sq Ft Plan 17 809

Anna Maria Alteration Request Form

17feet By 33feet House Plans Hd Png Download Vhv

91 3398 Maohiohi Loop Unit Aulu Lot 33 Ewa Beach Hi Mls Redfin

Nelson Design Group House Plan 129 3 Olive Street Farmhouse House Plan

Allison Ramsey Architects Marshview House Plan C0379 Print Out

Featured House Plan Bhg 7430

Tk 33 Low Emission House By Tegnestuen Lokal Wowow Home Magazine

Charming House Plans Cottage Home Plans Don Gardner

Pard Engineering Solution House Planing 41 X 33 Facebook

Index Of Media Designers 3 33 Plans 9 9032

Story Archives Page 16 Of 33 House Plans

Fallingwater House Floor Plan 26 Elegant Falling Water Floor Plan Procura Home Blog Fallingwater House Floor Plan

17 Pretty House Plans With Porches Burkley Park House Plan 17 12 Kt

European Style House Plan 4 Beds 4 5 Baths 4399 Sq Ft Plan 54 104 Builderhouseplans Com

17 X 35 Sq Ft House Plan Gharexpert Com House Plans Family House Plans Simple House Plans

Story Archives Page 6 Of 33 House Plans

Colonial Style House Plan 4 Beds 3 5 Baths 2400 Sq Ft Plan 429 33 Eplans Com